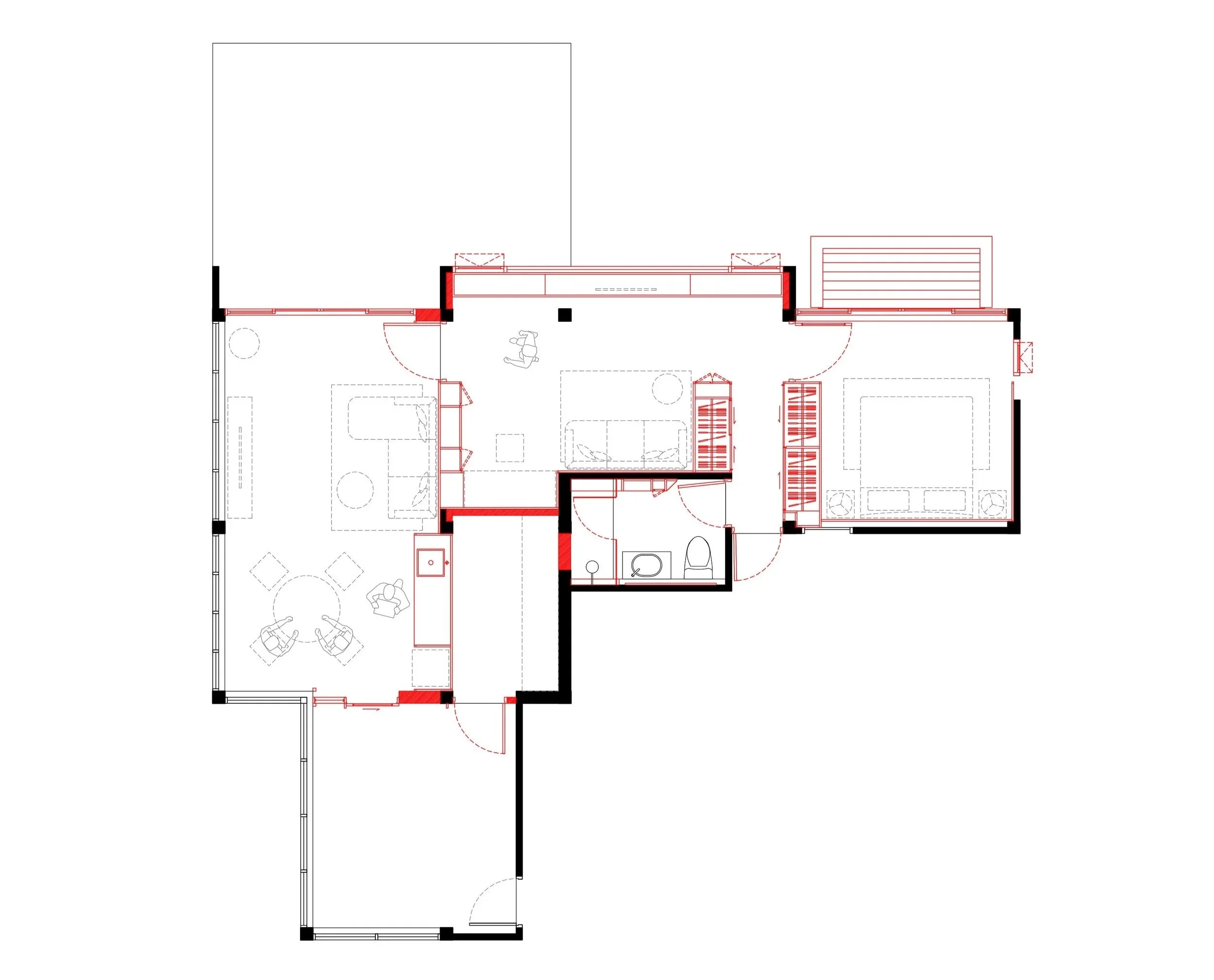
BBT house renovation
interior design

2024-2025
Nonthaburi, Thailand

before

after

Previous
Previous

JY house

Next
Next

VT condo renovation